
THE ZEN BAR
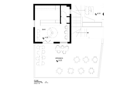
The project deals with a minute bar on the first floor of a small building by the seafront. The bar itself consists of a small sitting area and a bathroom, while on the exterior it offers a large veranda with a view to the sea. The interior space relates to the exterior space with the use a tri-fold wooden door and an enlarged window. The access to the bar is through an open U-shaped staircase situated on the aside aspect of the building that goes up to the first floor veranda.
The main objective has been to redefine the space functions relations with subtle alterations of the interior walls. Enlarging the bar space a little and respectively shortening the bathroom area a little, has given a more proper analogy among all space areas. The veranda hosts the most of the guests, so it has been designed with view to eliminating any fixed elements on the space.
The color palette has been using earth colors as well as light greys. Oak tables and shelves have been also used on the furniture.
PROJECT INFORMATION:
-
ARCHITECTURAL STUDY, IMPLEMENTATION STUDY: VASSILIKOU TINA, KOLSOUZOGLOU ANTHONY
-
CONSTRUCTION: KOLSOUZOGLOU ANTHONY, VASSILIKOU TINA
-
BUILT AREA: 25,00SQ.M. (INTERIOR SPACE), 60,82SQ.M. (EXTERIOR SPACE)
-
YEAR OF COMPLETION: 2018
-
PLACE: PAROS ISLAND, GREECE
-
PHOTOGRAPHER: TODD MARSHARD
Read more



























