THE G-RESIDENCE

THE R-RESIDENCE
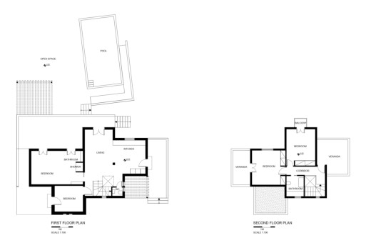
PROJECT DESCRIPTION
The project deals with the reconstruction of an out-of-date three-story residence and a pool construction, in order to be reused as a three-bedroom residence. The plot is situated on the outskirts of Naoussa village, the second largest town on Paros Island. The residence is situated on the top of a small hill and on a plot of a total 3800sq.m. The residence is placed at the center of the plot, providing a privileged north view to Naoussa town picturesque harbor. The plot itself is characterized by a wedge-like outline with a north direction.

Read more