
THE R-RESIDENCE
PROJECT DESCRIPTION
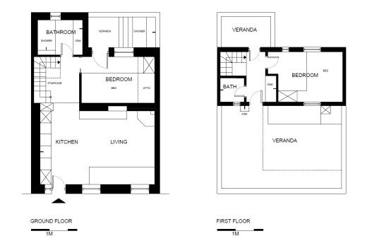
The project deals with the reconstruction of a very old two-story stone residence at the picturesque center of Parikia, the largest town on Paros Island, in order to be reused as a two-berdroom vacation residence. The residence is situated on a quite commonly-to-see minute plot of a total of 69sq.m area with a 7m long front façade. A short open-air area of 7,50sq.m resides on the inside area of the plot, providing a privatized ground floor veranda. The residence extends on two levels, with a first level of 62sq.m and a second level of 22sq.m. A relatively large veranda of 32sq.m resides upstairs, providing an unobstructed view to the picturesque town roads.
The reconstruction involves a new interior compartment organization by unifying the kitchen with the living room, enlarging the staircase allocated space, adding a new bathroom on the first floor, and refining the space on the large veranda on the first roof. A completely new infrastructure system has been provided, including plumbing, electrical and air-conditioning system.
The main architectural objective was to preserve and propound the identity elements of the old traditional residence, like the façade formation with few and small openings, the corner fireplace, several wall cavities that serve either as shelves or space sparing. Additionally, a certain preoccupation has been given to the staircase in the heart of the house, almost a pivotal one, by enlarging the allocated space for offering a cosy vertical access to the first level. Equipped with a synthesis of short storage rooms of different dimensions, the staircase assumes a point of magnitude. The residence had been provided with a very small, steel, circular staircase. Through the reconstruction, wood has been used instead of steel; triangular formations that refer to traditional pigeon-holes have been chosen instead of vertical forms; a rectangular outline has been derived from the masonry outline instead of that of a circular one.
The materials have been carefully selected with a view to managing the balance between respecting and assimilating the traditional architecture on the one hand, and consolidating the new available material and building techniques on the other hand. Therefore, wood has been extensively used to construct the staircase, the tiny bedroom attic on the ground floor, as well as a floor elevation in the two bedrooms that actually serves as the bed space itself providing additional storage room. The furniture is closely associated to the island style; wood tables and chairs, fabric cushions and throws; traditional decoration. The living room walls are decorated with art pieces of well-known Greek photographers and traditional Greek embroideries.
PROJECT INFORMATION:
-
ARCHITECTURAL STUDY, IMPLEMENTATION STUDY: VASSILIKOU TINA, KOLSOUZOGLOU ANTHONY.
-
CONSTRUCTION: KOLSOUZOGLOU ANTHONY, VASSILIKOU TINA.
-
BUILT AREA: 84sq.m.
-
YEAR OF COMPLETION: 2019.
-
LOCATION: PAROS ISLAND, GREECE.
-
PHOTOGRAPHER: NIFLIS STAVROS.
Read more




















































